Palma de Mallorca:
Property ID: EAE251






















Price:
2.125.000 €
Living space:
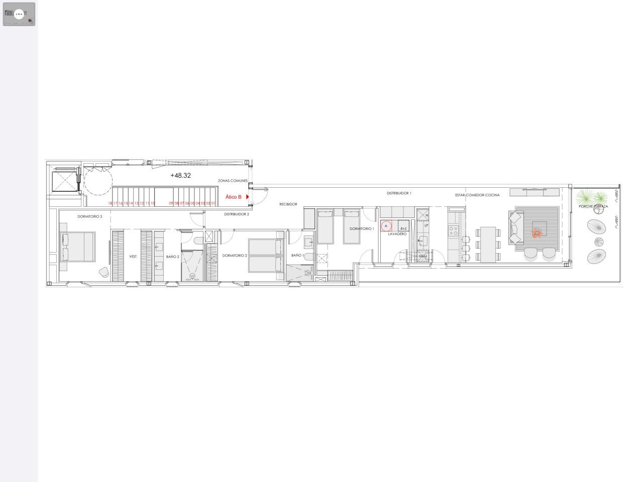
138 sq. m.
No. of rooms:
4
Type of apartment: Penthouse
Storey: 4
Number of floors: 4
Subject to commission: no
Kitchen: Open
Number of bedrooms: 3
Number of bathrooms: 2
Balcony: 1
Guest WC: yes
Pool: yes
Sauna: yes
Basement: Storage room
Air condition: yes
Alarm system: yes
Lift: yes
Suitable for disabled people: yes
Number of parking spaces: 2 x Garage
Views: Sea View
Quality of fittings: Luxury
Year of construction: 2024
Energy class: B
Upon signing a purchase contract, a placement / termination fee of 5.8% including 19% VAT on the purchase price by the buyer will be charged.
The information provided by us is based on information provided by the seller or the seller. For the correctness and completeness of the information, no responsibility or liability can be accepted. An intermediate sale and mistakes are reserved.
We refer to our terms and conditions. Through further use our services do you explain your knowledge and consent.
You might also like
Modern flat in Santa Ponsa in first sea line with pool
Flat in first sea line with pool in Illetas

Ebrahimi Estates
Mr. Ramin Ebrahimi
Ramon de Montcada 1607184 Santa Ponsa
Phone: +34614377014














































































