Palma de Mallorca:
Fantástico ático de obra nueva con diseño especial y vistas al mar en Palma
Referencia: EAE252


















Precio:
1.639.000 €
Superficie útil aprox.:
125 m²
Cantidad habitaciones:
4
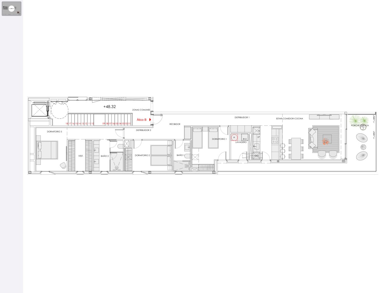
Este bonito ático está situado en Son Dameto, a pocos minutos del centro de Palma. Todos los servicios de infraestructura como tiendas, médicos y escuelas están en las inmediaciones. El edificio en sí es un proyecto arquitectónicamente sofisticado con una fachada verde y un interior diseñado con buen gusto con una piscina comunitaria y muchos otros aspectos destacados. El ático de alta calidad ofrece habitaciones luminosas gracias a los ventanales que van del suelo al techo y a los techos altos para una máxima sensación de espacio y elegancia. El salón-comedor de planta abierta invita a relajarse y ofrece una transición fluida a la espaciosa terraza (45m2). Desde allí puede acceder cómodamente a la azotea de unos 100m2 con fantásticas vistas al mar y a la ciudad de Palma. Puede amueblarla a su gusto, por ejemplo con una barbacoa y una zona chill-out con jacuzzi (no incluido en el precio). La cocina abierta de lujo estará equipada con materiales de alta calidad y electrodomésticos de Miele o similar. El ático también ofrece 3 dormitorios, 2 baños y un aseo. Todo tiene un diseño muy elegante de piedra y hormigón al que puede añadir su propio toque. El aire acondicionado f/c y la calefacción por suelo radiante mediante bomba de calor garantizan un agradable clima de vida durante todo el año. El precio incluye 2 plazas de garaje y un práctico trastero. Un ático muy interesante en una excelente ubicación. Estaremos encantados de proporcionarle información más detallada.
Vistas al Mar
Suelo radiante
Aire Acondicionado
Tipo de vivienda: Ático
Planta: 4
N° de plantas: 4
Comisionable: no
Superficie constr. aprox.: 170 m²
Cocina: Abierto
Cantidad dormitorios: 3
Cantidad baños: 3
Balcón: 2
Terraza: 1
WC para huéspedes: sí
Aire acondicionado: sí
Sistema de alarma: sí
Ascensor: sí
Cantidad de aparcamientos: 2 x Garaje
Mobiliario: no
Vista: Vistas al mar
Calidad del mobiliario: Lujo
Año de construcción: 2024
Estado: A estrenar
Clase energética: B
La información proporcionada por nosotros se basa en la información proporcionada por el vendedor o el vendedor. Para la exactitud e integridad de la información, ninguna responsabilidad puede ser aceptada. Una venta intermedia y los errores son reservados.
Nos referimos a nuestros términos y condiciones. A través de más utilizar nuestros servicios usted explicar su conocimiento y consentimiento.
También te podría gustar

Ebrahimi Estates
Señor Ramin Ebrahimi
Ramon de Montcada 1607184 Santa Ponsa
Teléfono: +34614377014








































