Santa Ponsa:
Exclusivo proyecto de villa con piscina y vistas panorámicas en Santa Ponsa
Referencia: EAE237
















Precio:
2.900.000 €
Superficie útil aprox.:
344 m²
Terreno aprox.:
1.158 m²
Cantidad habitaciones:
6
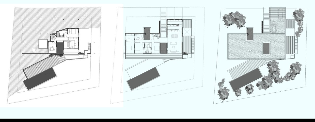
Este proyecto de una villa en Santa Ponsa convence no sólo con una fantástica vista panorámica de la Sierra de Tramuntana, sino también con una excelente mano de obra de materiales de alta calidad.
Hay 2 plazas de aparcamiento a nivel de calle.
El espacio habitable se distribuye en 2 niveles, lo que garantiza un alto grado de privacidad para disfrutar del hermoso jardín con piscina infinita.
En la planta baja, además de la sala de estar de planta abierta con cocina de diseño y amplia isla de cocina, hay un dormitorio con baño en suite, un estudio y un aseo de invitados.
En la planta superior, justo debajo del nivel de la calle, hay otros 3 dormitorios con baño en suite, balcón y vistas panorámicas.
Al estilo minimalista y moderno de la casa se le da calidez con elementos de madera y piedra de cantera.
Estaremos encantados de informarle detalladamente sobre este interesante proyecto, que todavía se puede personalizar en esta fase de construcción y que, además, actualmente sólo tiene este precio.
Una vez terminado, el precio será de 3,2 millones de euros.
Tipo de casa: Villa
N° de plantas: 2
Comisionable: no
Cantidad dormitorios: 5
Cantidad baños: 4
Terraza: 1
WC para huéspedes: sí
Chimenea: sí
Piscina: sí
Aire acondicionado: sí
Sistema de alarma: sí
Cantidad de aparcamientos: 1 x Garaje
Vista: Vista Panorámica
Calidad del mobiliario: Lujo
Año de construcción: 2023
Fase de construcción: Casa en construcción
Al momento de firmar un contrato de compra, se le cobrará una cuota de colocación / terminación de un 5,8% incluyendo 19% de IVA sobre el precio de compra por el comprador o la compradora.
La información proporcionada por nosotros se basa en la información proporcionada por el vendedor o la vendedora. Para la exactitud e integridad de la información, ninguna responsabilidad puede ser aceptada. Una venta intermedia y los errores son reservados.
Nos referimos a nuestros términos y condiciones. A través de más utilizar nuestros servicios usted explicar su conocimiento y consentimiento.
También te podría gustar

Ebrahimi Estates
Señor Ramin Ebrahimi
Ramon de Montcada 1607184 Santa Ponsa
Teléfono: +34614377014



















