Santa Ponsa:
Projet de villa exclusive avec piscine et vue panoramique à Santa Ponsa
N° de l´objet: EAE237
















Prix:
2.900.000 €
Surface habitable env.:
344 m².
Terrain env.:
1.158 m².
Nombre de pièces:
6
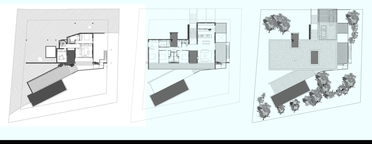
Ce projet de villa à Santa Ponsa séduit non seulement par sa vue fantastique sur les montagnes de Tramuntana, mais aussi par l’excellence de ses matériaux.
Deux places de parking se trouvent au niveau de la rue.
L’espace habitable est réparti sur deux niveaux en contrebas, ce qui garantit un haut degré d’intimité pour pouvoir profiter sans souci du beau jardin aménagé avec une piscine à débordement.
Au rez-de-chaussée se trouvent, outre le salon ouvert et la cuisine design avec un îlot de cuisson spacieux, une chambre à coucher avec salle de bains en suite ainsi qu’un bureau et un WC pour les invités.
Au niveau supérieur, juste en dessous de la route, se trouvent trois autres chambres avec salle de bains en suite, balcon et vue panoramique.
Le style minimaliste et moderne de la maison est réchauffé par du bois et des éléments en pierre de taille.
C’est avec plaisir que nous vous informerons en détail sur ce projet intéressant, qui peut encore être personnalisé à ce stade de la construction et qui n'a ce prix qu'actuellement.
Une fois la construction terminée, le prix sera de 3,2 millions d'euros.
Type de maison: Villa
Nombre d´étages: 2
Soumis à commission: Non
Nombre de chambres à coucher: 5
Nombre de salles de bain: 4
Terrasse: 1
Toilettes invités: Oui
Cheminée: Oui
Piscine: Oui
Climatisation: Oui
Système d'alarme: Oui
Nombre des places de parking: 1 x Garage
Vue: Vue panoramique
Qualité de l´équipement: Luxe
Année de construction: 2023
Phase de construction: Maison en construction
Vous pourriez aussi aimer
Exklusives Luxus-Neubauprojekt mit Pool und Fernblick
Villa moderne avec piscine dans le meilleur endroit de Santa Ponsa
Exklusive Villa mit Pool und Sauna in Top-Lage

Ebrahimi Estates
Monsieur Ramin Ebrahimi
Ramon de Montcada 1607184 Santa Ponsa
Téléphone: +34614377014























































